Diseñamos y construimos casas de madera, casetas personalizadas y estructuras de madera a medida con acabados de calidad y eficiencia energética.
Casas de Madera a Medida | Estructuras de Madera Resistentes
Sistema constructivo SIP | Construcción con Paneles SIP | Eficiencia y Sostenibilidad
Montaje Prefabricado | Casetas Prefabricadas | Prefabricados | Estructura Prefabricada
Sistema de Entramado Ligero | Método Constructivo Europeo
Casas de Madera en Madrid, Barcelona, Bilbao, Valencia, Asturias y Galicia
Desde proyectos parciales hasta construcciones llave en mano, ofrecemos soluciones flexibles adaptadas a cada cliente. Utilizamos entramado ligero y paneles SIP para garantizar construcciones sostenibles, eficientes y duraderas.
Casas & Casetas Prefabricadas | Ideas Exteriores
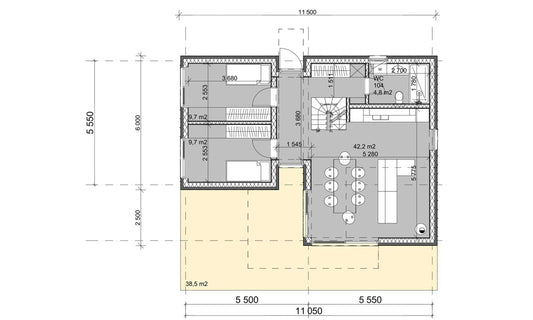
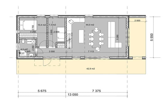
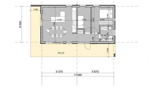
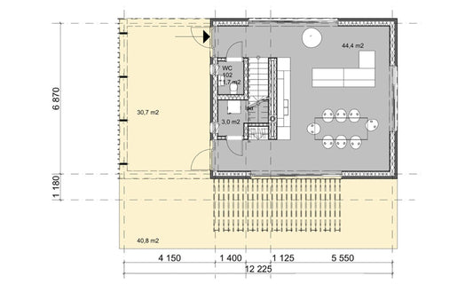
En Ideas Exteriores, construimos casas y casetas de madera que se adaptan a tus ideas y necesidades. El 95% de nuestros proyectos son personalizados, porque creemos que tu visión merece ser única
Ofrecemos dos sistemas constructivos innovadores:
Entramado Ligero: Perfecto para diseños personalizados y adaptaciones a terrenos con desniveles.
Paneles SIP (Paneles Estructurales Aislados): Hogares acogedores, sostenibles y de alta eficiencia energética.
Beneficios de elegirnos:
Diseño a medida: Amplía tu hogar, añade luminosidad o crea algo único.
Calidad y rapidez: Instalación eficiente sin comprometer la excelencia.
Sostenibilidad: Ahorro energético y respeto por el medio ambiente.
Versatilidad: Desde casas personalizadas hasta soluciones prefabricadas.
Construye de forma inteligente y sostenible con Ideas Exteriores. Tu hogar, nuestra pasión.
DESCUBRE POR QUÉ SOMOS LA MEJOR OPCIÓN
-
Diseño exclusivo
Encuentra el modelo que te representa o crea un diseño único para tu casa o caseta.
-
Construcción eficiente
Expertos en paneles estructurales SIP, ofrecemos espacios sostenibles con una construcción eficiente.
-
Calidad garantizada
Utilizamos maderas y materiales certificados con el sello CE. Tu tranquilidad es nuestra prioridad.
-
Compromiso sostenible
Construimos con elegancia y eficiencia, mostrando compromiso con el medio ambiente.
DISEÑOS ÚNICOS Y ACABADOS DE CALIDAD
Descúbrenos
Con más de 40 años de experiencia en estructuras de madera, transformamos tus ideas en realidad. Desde hogares completos hasta proyectos para el jardín, como casetas, pérgolas y tarimas exteriores, nuestra pasión por la madera se refleja en cada detalle.
Especialistas en Madera
Creamos espacios que combinan belleza y funcionalidad, diseñados para superar tus expectativas. Nuestro equipo de arquitectos, interioristas y expertos en construcción trabaja contigo para hacer realidad tu visión, ya sea un hogar acogedor o un rincón en el jardín.
Contáctanos
¿Tienes preguntas o necesitas más información? Estamos aquí para ayudarte a construir con madera, desde viviendas hasta estructuras prefabricadas. Tu visión es nuestra prioridad.



