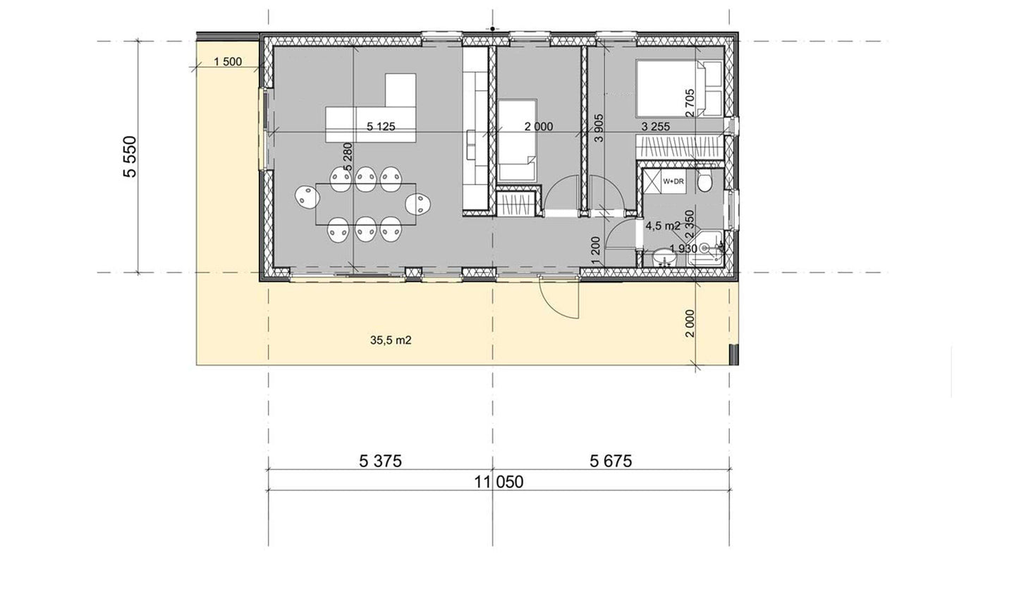
NAIARA (55m² + Terraza)
NAIARA (55m² + Terraza)






TIPO DE PROYECTO
-
BASIC
INCLUYE:
- Pack SIP (Paredes Int/Ext, Techo)
- Distribución Interior personalizada
- Ventanas de PVC sin persianas
- Puertas Interiores
- Puerta de Entrada
- Terraza (Según modelo)
- Transporte Gratuito (Zona Penínsular)
NO INCLUYE:
- Proyecto de arquitectura
- Dirección de obra
- Movimiento de tierras
- Montaje de estructura
- Saneamientos
- Cimentatión para la estructura
- Aislamientos interno y externo
- Acabado de techo
- Instalación Eléctrica
- Instalación de Fontanería
- Acabados interiores (Memoria Calidades).
- Acabados exteriores (Memoria Calidades).
ESTRUCTURA DE MADERA
PAREDES PREFABRICADAS EXTERNAS
Espesor: 124 mm
Panel fabricado con tablero OSB3 de 12mm interior, polietireno expandido EPS SATE
20Kg/m3 de 100mm y tablero OSB3 de 12mm protección contra el viento.Listón de madera blanda:
- Secado en horno (16 %)
- Planificada, calibrada
- Graduada (C16/C24)
- Dimensiones: 100x40 mm
Membrana de la fachada:
- Densidad 130/m2, espesor efectivo de la difusión de vapor 0,015 m
- Vapor total 80g/m2PAREDES ESTRUCTURALES INTERNAS
Espesor: 74 mm
Panel fabricado con tablero OSB3 de 12mm, polietireno expandido EPS SATE 20Kg/m3
de 50mm y tablero OSB3 de 12mm.Listón de madera blanda:
- Secado en horno (16%)
- Planificada, calibrada
- Graduada (C16/C24)
- Dimensiones 50x40 mm.
Sistema de viga en cubierta:
Vigas:
- Dimensiones 160x80 mm (Madera blanda)
- Secado en horno (16%)
- Planificada, calibrada
- Graduada (C16/C24)
Correas:
- Dimensiones 280x200
- Secado en horno (16 %)
- Planificada, calibrada
- Graduada (C16/C24)
- Pegamento – Compatible con D4
Friso de pino abeto:
- Dimensiones 140x20 mm
-
STANDARD
INCLUYE:
- Pack SIP (Paredes Int/Ext, Techo)
- Distribución interior personalizada
- Ventanas de PVC sin persianas
- Aislamiento (Exterior & Techo)
- Revestimoento exterior de friso
- Instalación de tégola de techo
- Puertas interiores
- Puerta de Entrada
- Terraza (Según modelo)
- Transporte Gratuito (Zona Penínsular)
NO INCLUYE:
- Proyecto de arquitectura
- Dirección de obra
- Movimiento de tierras
- Montaje de estructura
- Saneamientos
- Cimentatión para la estructura
- Aislamiento (Interior & Suelo)
- Instalación eléctrica
- Instalación de fontanería
- Acabados interiores (Memoria calidades)
- Acabados exteriores (Memoria calidades)
- Muebles de baño
- Muebles de cocinas
- Armarios
ESTRUCTURA DE MADERA
PAREDES PREFABRICADAS EXTERNAS
Espesor: 196 mm
Panel fabricado con tablero OSB3 de 12mm interior, polietireno expandido EPS SATE 20Kg/m3 de 100mm y tablero OSB3 de 12mm protección contra el viento, más 72 mm del aislamiento interior, total 196mm.
Listón de madera blanda:
- Secado en horno (16 %)
- Planificada, calibrada
- Graduada (C16/C24)
- Dimensiones: 100x40 mm
Membrana de la fachada:
- Densidad 130/m2, espesor efectivo de la difusión de vapor 0,015 m
- Vapor total 80g/m2Membrana de vapor:
Primavap-Sd-8AISLAMIENTO INTERIOR:
Listón de madera blanda:
- Secado en horno (16 %)
- Planificada, calibrada
- Graduada (C16/C24)
- Dimensiones: 60x40 mm
RockWool Superrock:
- Lambda D=0.035 W/mK
- U-valor (200 mm)= 0.175 W/m2K
- Euroclass – A1
Tablero interno:
- OSB - 3 o placa de pladur
- Espesor – 12 mm
PAREDES ESTRUCTURALES INTERNAS
Espesor: 74 mm
Panel fabricado con tablero OSB3 de 12mm, polietireno expandido EPS SATE 20Kg/m3 de 50mm y tablero OSB3 de 12mm.
Listón de madera blanda:
- Secado en horno (16%)
- Planificada, calibrada
- Graduada (C16/C24)
- Dimensiones 50x40 mm.
Sistema de viga en cubierta:
Vigas:
- Dimensiones 160x80 mm (Madera blanda)
- Secado en horno (16%)
- Planificada, calibrada
- Graduada (C16/C24)
Correas:
- Dimensiones 280x200
- Secado en horno (16 %)
- Planificada, calibrada
- Graduada (C16/C24)
- Pegamento – Compatible con D4
Friso de pino abeto:
- Dimensiones 140x20 mm
AISLAMIENTO TECHO
Listón de madera blanda:
- Secado en horno (16 %)
- Planificada, calibrada
- Graduada (C16/C24)
- Dimensiones: 60x40 mm
RockWool Superrock:
- Lambda D=0.035 W/mK
- U-valor (200 mm)= 0.175 W/m2K
- Euroclass – A1
Tablero interno:
- OSB – 3
- Espesor – 12 mm
-
PASSIVE
INCLUYE:
- Pack SIP (Paredes Int/Ext, Techo)
- Cimentatión para la estructura
- Montaje de estructura
- Distribución interior personalizada
- Ventanas de PVC sin persianas
- Aislamiento (Interior, Exterior & Techo)
- Revestimoento exterior de friso
- Instalación de tégola de techo
- Puertas interiores
- Puerta de entrada
- Instalación eléctrica
- Instalación de Fontanería
- Acabados interiores (Memoria calidades).
- Acabados exteriores (Memoria calidades).
- Terraza (Según modelo)
- Transporte Gratuito (Zona Penínsular)
NO INCLUYE:
- Proyecto de arquitectura
- Dirección de obra
- Movimiento de tierras
- Saneamientos
- Aislamiento de suelo
- Muebles de baño
- Muebles de cocinas
- Armarios
ESTRUCTURA DE MADERA
PAREDES PREFABRICADAS EXTERNAS
Espesor: 300 mm
Panel fabricado con tablero OSB3 de 12mm interior, polietireno expandido EPS SATE 20Kg/m3 de 100mm y tablero OSB3 de 12mm protección contra el viento, más aislamiento exterior 103mm, más aislamiento interior 72mm.
Listón de madera blanda:
- Secado en horno (16 %)
- Planificada, calibrada
- Graduada (C16/C24)
- Dimensiones: 100x40 mm
Membrana de la fachada:
- Densidad 130/m2, espesor efectivo de la difusión de vapor 0,015 m
- Vapor total 80g/m2AISLAMIENTO EXTERIOR
Rockwool FrontRock MAX E 100 mm:
- Lambda D=0.036 W/mk
- U –valor (200 mm)= 0.175 W/m2K
- Euroclass – A1
Membrana de vapor:
Primavap-Sd-8PAREDES ESTRUCTURALES INTERNAS
Distribución interior a gusto del cliente
Espesor: 74 mm
Panel fabricado con tablero OSB3 de 12mm, polietireno expandido EPS SATE 20Kg/m3 de 50mm y tablero OSB3 de 12mm.
Listón de madera blanda:
- Secado en horno (16%)
- Planificada, calibrada
- Graduada (C16/C24)
- Dimensiones 60x40 mm.
AISLAMIENTO INTERIOR
Listón de madera blanda:
- Secado en horno (16 %)
- Planificada, calibrada
- Graduada (C16/C24)
- Dimensiones: 40x40 mm
RockWool Superrock:
- Lambda D=0.035 W/mK
- U-valor (200 mm)= 0.175 W/m2K
- Euroclass – A1
Tablero interno:
- OSB - 3 o placa de pladur
- Espesor – 12 mm
Sistema de viga en cubierta:
Vigas:
- Dimensiones 160x80 mm (Madera blanda)
- Secado en horno (16%)
- Planificada, calibrada
- Graduada (C16/C24)
Correas:
- Dimensiones 280x200
- Secado en horno (16 %)
- Planificada, calibrada
- Graduada (C16/C24)
- Pegamento
- Compatible con D4Friso de pino abeto:
- Dimensiones 140x20 mm
AISLAMIENTO TECHO
Listón de madera blanda:
- Secado en horno (16 %)
- Planificada, calibrada
- Graduada (C16/C24)
- Dimensiones: 60x40 mm
RockWool Superrock:
- Lambda D=0.035 W/mK
- U-valor (200 mm)= 0.175 W/m2K
- Euroclass – A1
Tablero interno:
- OSB – 3
- Espesor – 12 mm